OBSERVATORY CIRCLE4100 CATHEDRAL AVENUE NW 818WASHINGTON, DC 20016




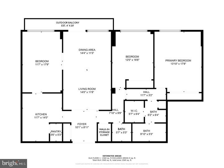
Cathedral Heights Condo: Redesigned and Refreshed This stunning 2-bedroom with a flex room that can be a third bedroom, 2-bathroom condo has been thoughtfully redesigned and is back on the market, offering an exceptional value and an unbeatable new price! Located on the 8th floor of a full-service building in Cathedral Heights, this nearly 1,600-square-foot home has everything you need for luxurious city living. Step inside and be welcomed by new flooring and a fresh, inviting atmosphere. The updated kitchen is a true standout, featuring sleek countertops, stylish cabinetry, and a reconfigured layout that makes entertaining a breeze. Your living space extends beyond the walls of your unit. The building offers an incredible array of amenities designed to enhance your lifestyle, including a year-round indoor pool, a fitness center, a dance studio, and a tranquil library. Practical conveniences like same-level laundry and trash removal simplify your daily routine, and the inclusion of an assigned garage parking space adds a layer of ease to city living. Escape the urban hustle on your private balcony, a peaceful retreat nestled among the trees. The location is second to none—just a short stroll from American University, vibrant restaurants, unique shops, and scenic parks. Don’t miss your chance to secure this beautifully updated home in one of DC’s most sought-after neighborhoods. The seller is motivated, so contact us today to schedule your private tour!
| a month ago | Listing updated with changes from the MLS® | |
| 2 months ago | Price changed to $719,900 | |
| 5 months ago | Status changed to Active | |
| 5 months ago | Listing first seen on site |
The real estate listing information is provided by Bright MLS is for the consumer's personal, non-commercial use and may not be used for any purpose other than to identify prospective properties consumer may be interested in purchasing. Any information relating to real estate for sale or lease referenced on this web site comes from the Internet Data Exchange (IDX) program of the Bright MLS. This web site references real estate listing(s) held by a brokerage firm other than the broker and/or agent who owns this web site. The accuracy of all information is deemed reliable but not guaranteed and should be personally verified through personal inspection by and/or with the appropriate professionals. Properties in listings may have been sold or may no longer be available. The data contained herein is copyrighted by Bright MLS and is protected by all applicable copyright laws. Any unauthorized collection or dissemination of this information is in violation of copyright laws and is strictly prohibited. Copyright © 2020 Bright MLS. All rights reserved.

Did you know? You can invite friends and family to your search. They can join your search, rate and discuss listings with you.