2920 18TH STREET NW AWASHINGTON, DC 20009




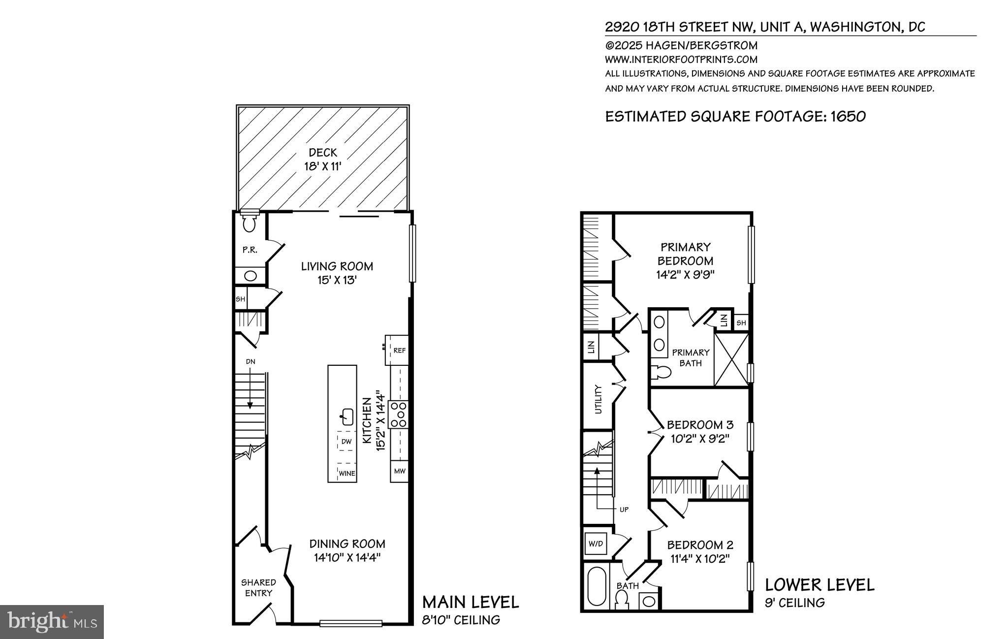
PRICE REDUCED $100K TOTAL!!!! Welcome to this stunning condo in the heart of Lanier Heights! This spacious three-bedroom, two-and-a-half-bath home spans 1,650 square feet on two levels. As an end of row residence, it is bathed in natural light from windows on three sides. The main level features an open-concept design, creating a seamless flow between the living and dining areas—perfect for entertaining. The showpiece of the space is the gourmet kitchen, which boasts quartz waterfall countertops, an oversized center island with bar seating for six, custom cabinetry, Bosch stainless steel appliances, and a wine fridge. Just off the living room, a private and spacious deck offers the ideal setting for outdoor gatherings. A convenient powder room completes this level. On the lower level, the expansive primary suite includes two separate closets and a spa-like en suite bath with a glass waterfall shower and a custom dual vanity. Two additional bedrooms, a second full bath, and a full-size washer and dryer provide both comfort and functionality. An off-street parking space is included! Ideally located in Lanier Heights, this home is just moments from the dining, retail, and entertainment options along Columbia Road in Adams Morgan and the Woodley Park red line Metro, with easy access to Rock Creek Park/Parkway and the Smithsonian National Zoo.
| 8 months ago | Listing updated with changes from the MLS® |

Did you know? You can invite friends and family to your search. They can join your search, rate and discuss listings with you.